Capitaine Scott - PARIS XV

architecture d'interieur

Année : 2024
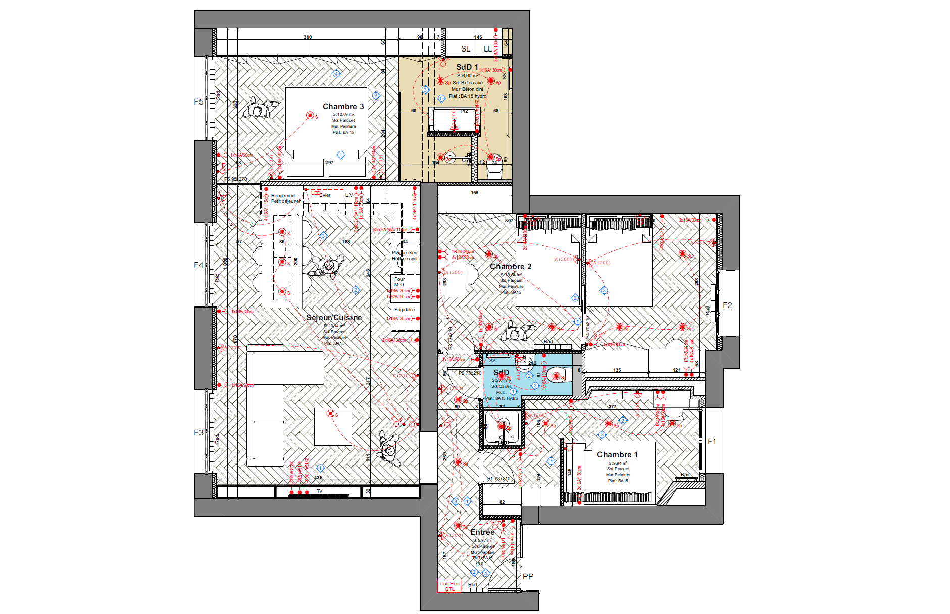
Surface : 88m²
Budget prévisionnel : 200 000 euros HT Mission : conception avant projet - visuels 3D

Cet appartement de 88 m², situé dans le 15ᵉ arrondissement de Paris, a été entièrement rénové afin d’offrir à ses habitants un cadre de vie fonctionnel et chaleureux. Chaque espace a été conçu sur mesure, en accord avec les besoins d’une vie familiale.
La cuisine, pensée comme un lieu central, combine ergonomie et convivialité. La suite parentale regroupe chambre, dressing et salle de bain dans une organisation fluide et élégante, tandis que les deux chambres des enfants bénéficient chacune d’un aménagement optimisé et personnalisé.
Le projet se distingue également par un travail subtil sur les matières et les couleurs, qui rythme l’appartement et lui apporte une identité forte, à la fois contemporaine et chaleureuse.

X