Inkermann - NEUILLY

architecture d'interieur

Année : 2018
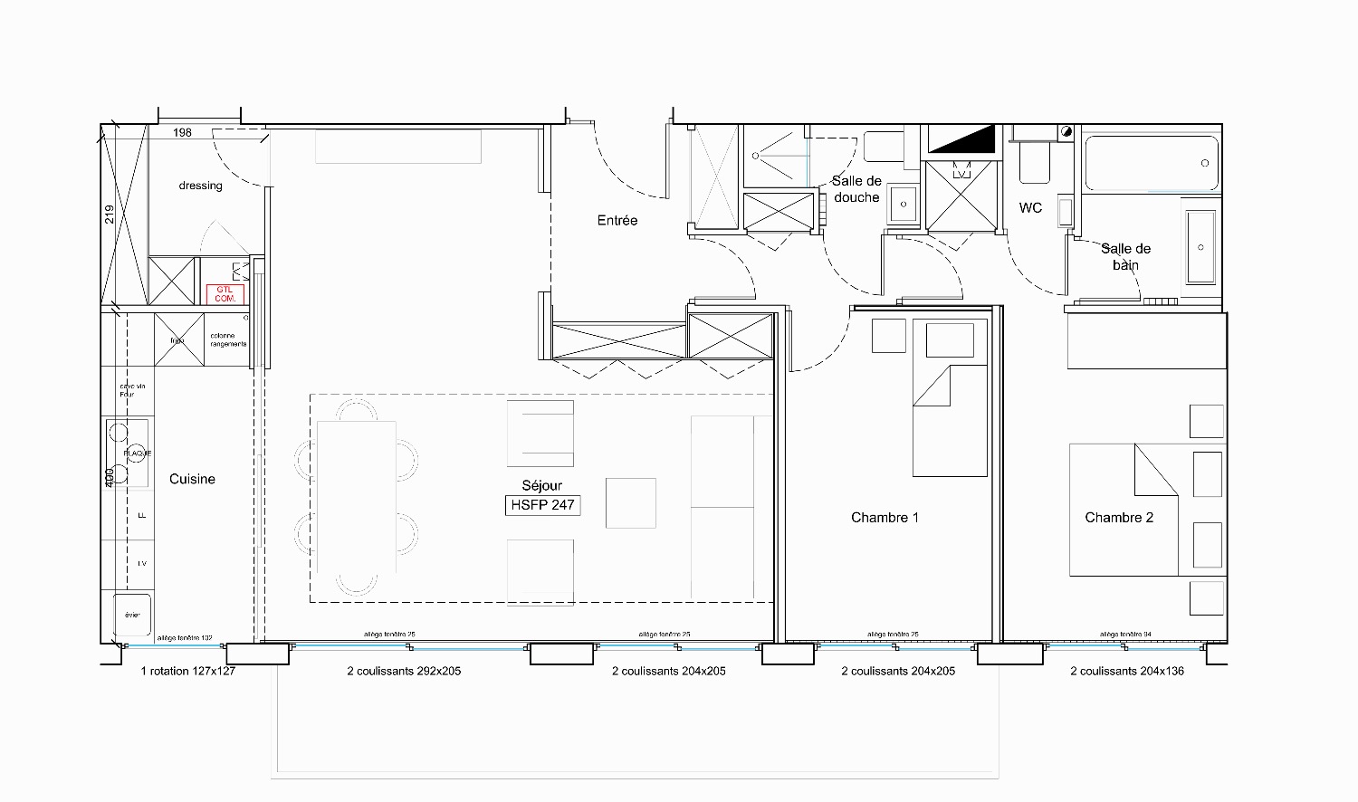
Surface : 103m²
Budget : 148 000 euros HT
Maitrise d'ouvrage privée
Mission complète

Cet appartement a bénéficié d’une rénovation totale, pensée pour allier élégance contemporaine et confort au quotidien.
La cuisine a été conçue ouverte sur l’espace de vie, tout en conservant la possibilité d’intimité grâce à une cloison vitrée coulissante, qui apporte à la fois transparence et modularité. Dans le salon, un meuble TV et rangement sur mesure a été dessiné afin d’optimiser l’espace et de créer une atmosphère cohérente et épurée.
L’entrée a également fait l’objet d’un soin particulier : un ensemble de rangements intégrés et un travail de lumière d’ambiance y structurent l’espace, offrant à la fois fonctionnalité et accueil chaleureux dès le seuil franchi.
Le résultat est un intérieur fonctionnel, lumineux et raffiné, où chaque détail sur mesure contribue à l’harmonie de l’ensemble.

X