Monge - PARIS V

architecture d'interieur

Année : 2018
Surface : 100m²
Budget : 246 000 euros TTC
Maitrise d'ouvrage privée
Mission complète

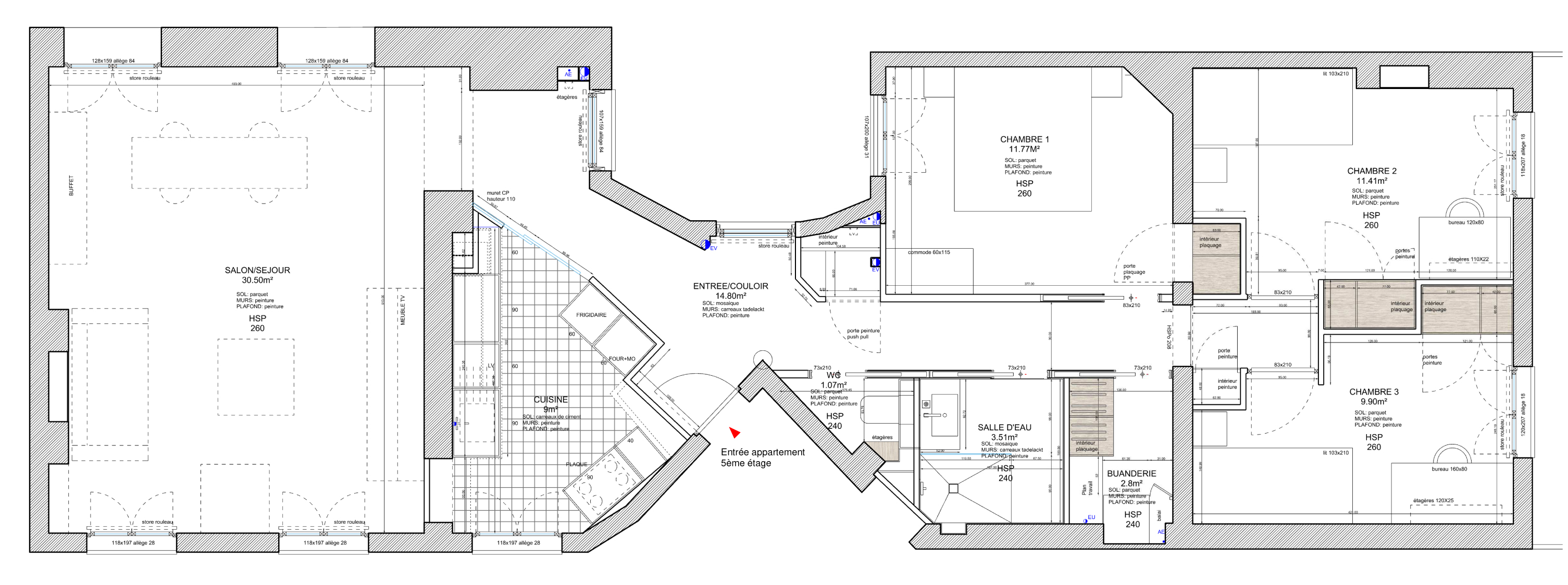
Cet appartement situé dans le 5ᵉ arrondissement de Paris a fait l’objet d’une rénovation totale, avec une attention particulière portée à la fluidité des espaces et au confort quotidien.
Dans la pièce à vivre, plusieurs meubles TV et bibliothèques sur mesure ont été conçus pour structurer l’espace et offrir de généreuses solutions de rangement, tout en valorisant l’esthétique intérieure. Les circulations et menuiseries menant vers les espaces de nuit et d’eau ont été repensées afin d’apporter cohérence et continuité architecturale.
La cuisine a été aménagée et optimisée autour de tonalités colorées, pour créer un lieu convivial et pratique au cœur du logement. Enfin, des placards sur mesure ont été intégrés dans les chambres, permettant une organisation fonctionnelle et adaptée aux besoins des occupants.
Résultat : un appartement fluide, fonctionnel et chaleureux, où le sur-mesure et le soin du détail redéfinissent les usages du quotidien.

X