Rochechouart - PARIS IX

architecture d'interieur

Année : 2022
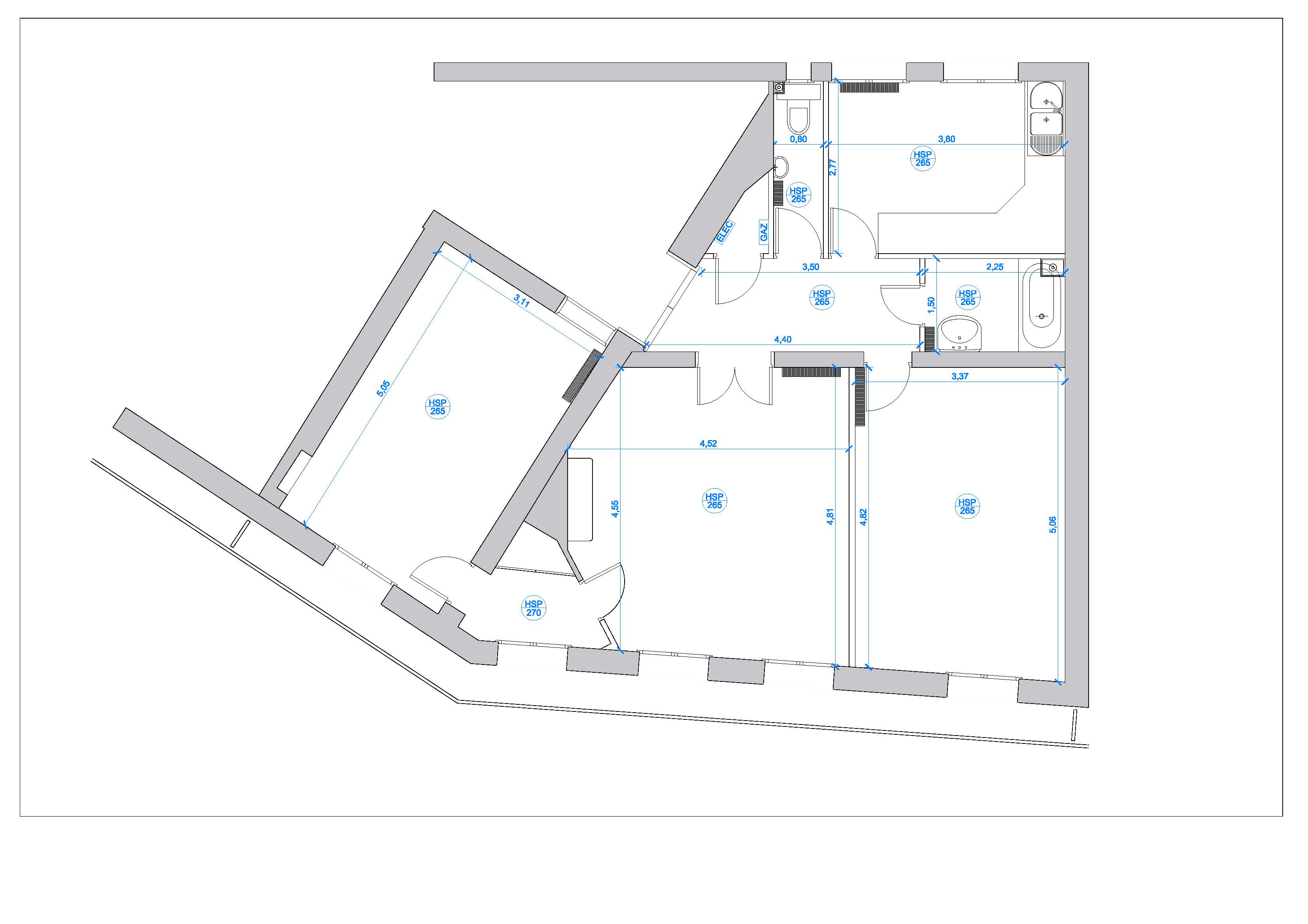
Surface : 78m²
Mission complète
Budget : 148 000 HT / 162 000 TTC
Maitrise d'ouvrage privée

Cet appartement de 78 m², situé en plein cœur du 9ᵉ arrondissement, a été totalement rénové pour offrir un cadre de vie contemporain, fonctionnel et chaleureux.
Dès l’entrée, un meuble de rangement sur mesure dans une teinte bleue profonde accueille les occupants et structure l’espace. La cuisine, ouverte sur l’espace repas, s’intègre dans une pièce de vie pensée fluide et conviviale. Une arche bibliothèque intégrant des rangements fermés marque la séparation subtile entre le coin cuisine et le séjour, tout en conservant une grande ouverture visuelle.
Dans la chambre parentale, un ensemble sur mesure a été dessiné et réalisé : placard, tête de lit et coiffeuse s’accordent dans une palette bois et terre de sienne brûlée, apportant chaleur et élégance à l’espace nuit.
Enfin, les sanitaires et la salle de bain ont été entièrement repris et habillés de bétons cirés beiges unis, pour un rendu minimaliste, raffiné et intemporel.
Résultat : un appartement à l’ambiance douce et contemporaine, où chaque détail sur mesure participe à l’harmonie d’ensemble.

X