Altice - VILLEJUIF

bureau

Année : 2024
Surface : 370m²
Budget : 780 000 euros HT
Mission complète
Maitrise d’ouvrage privée

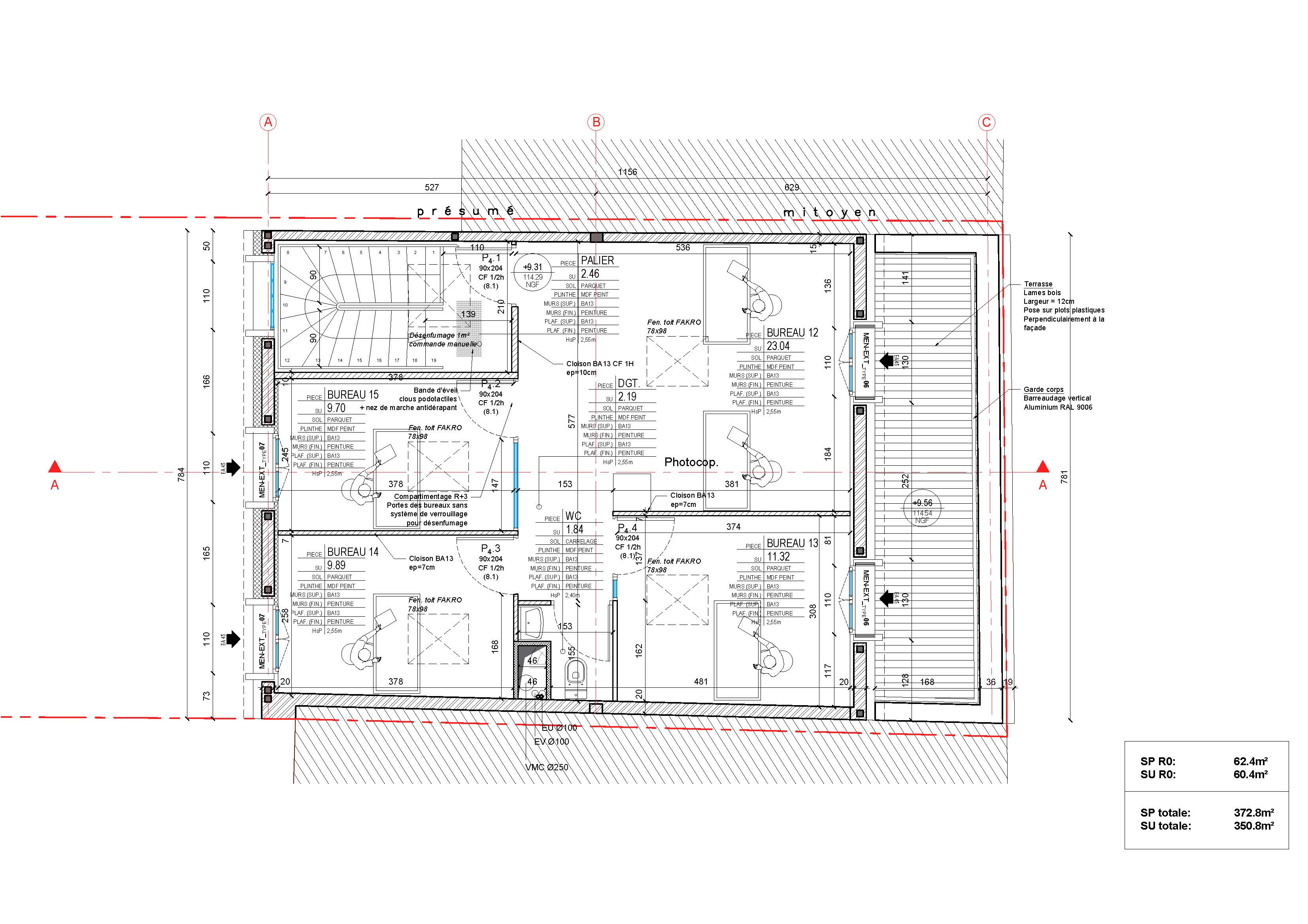
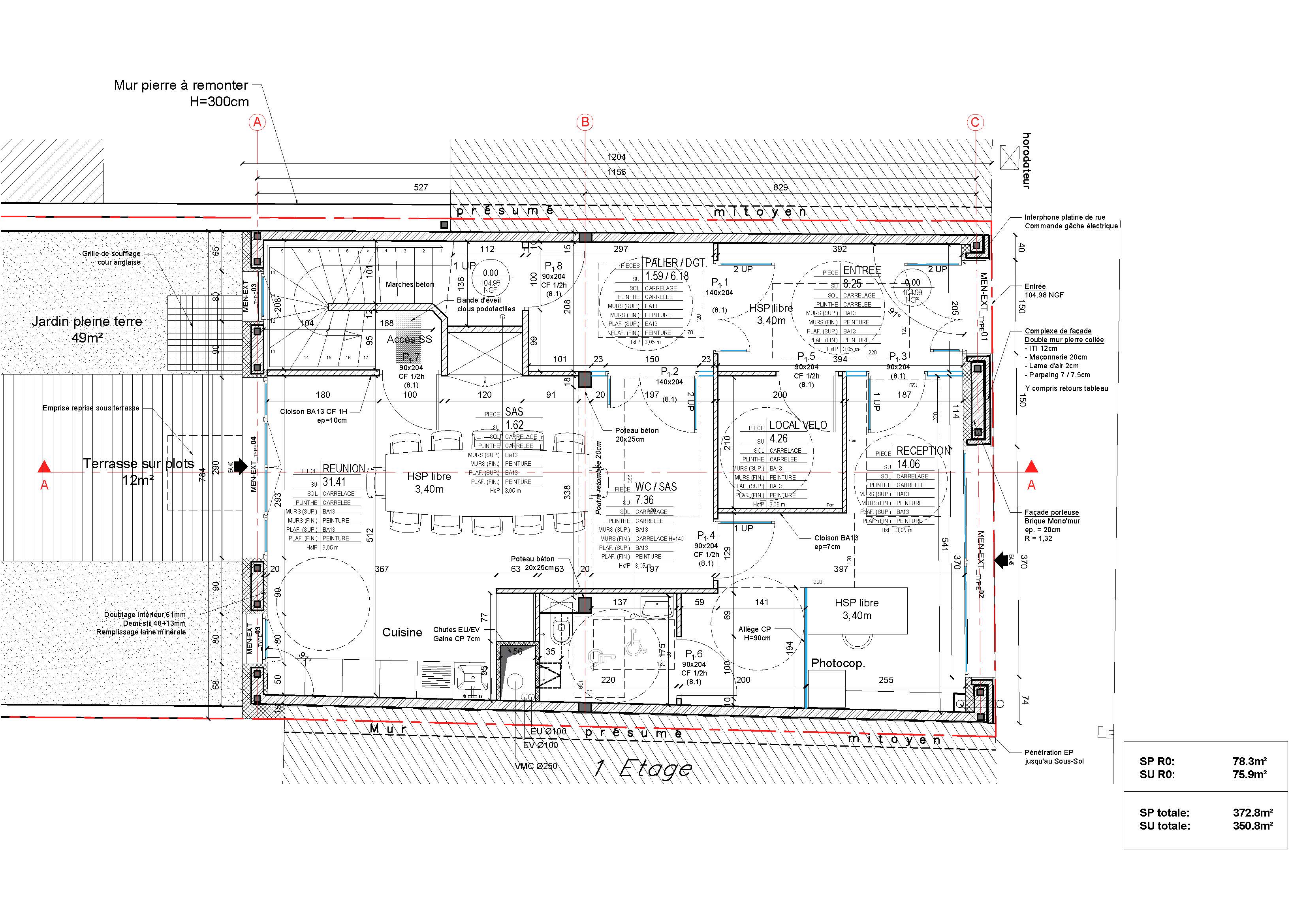
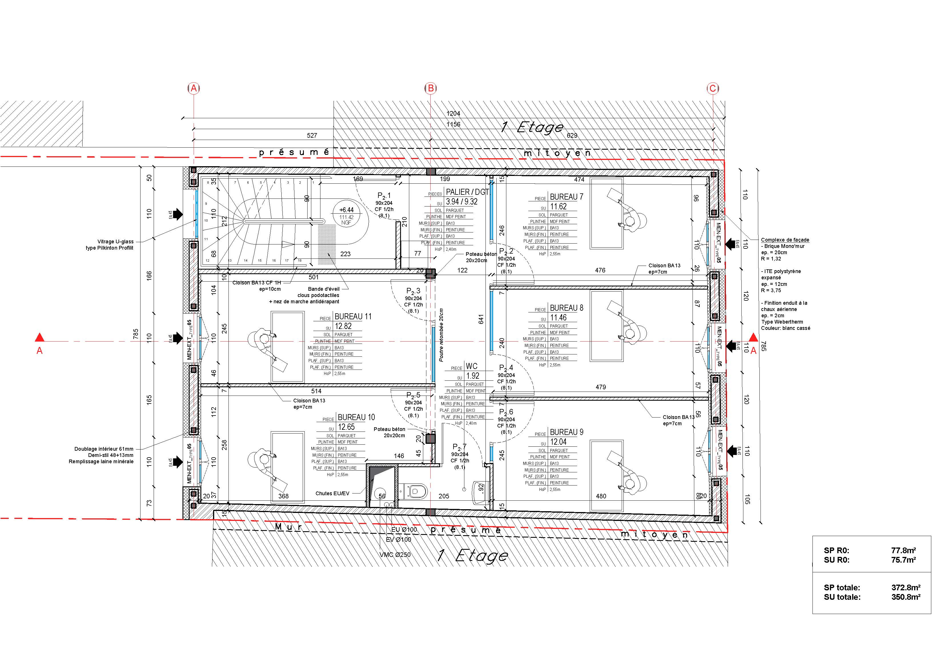
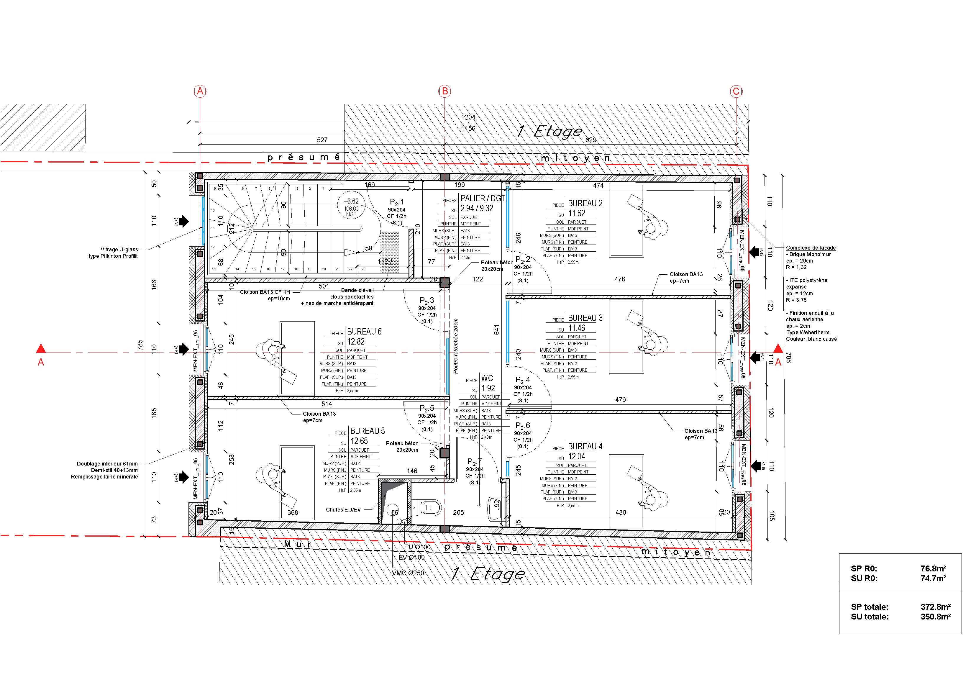
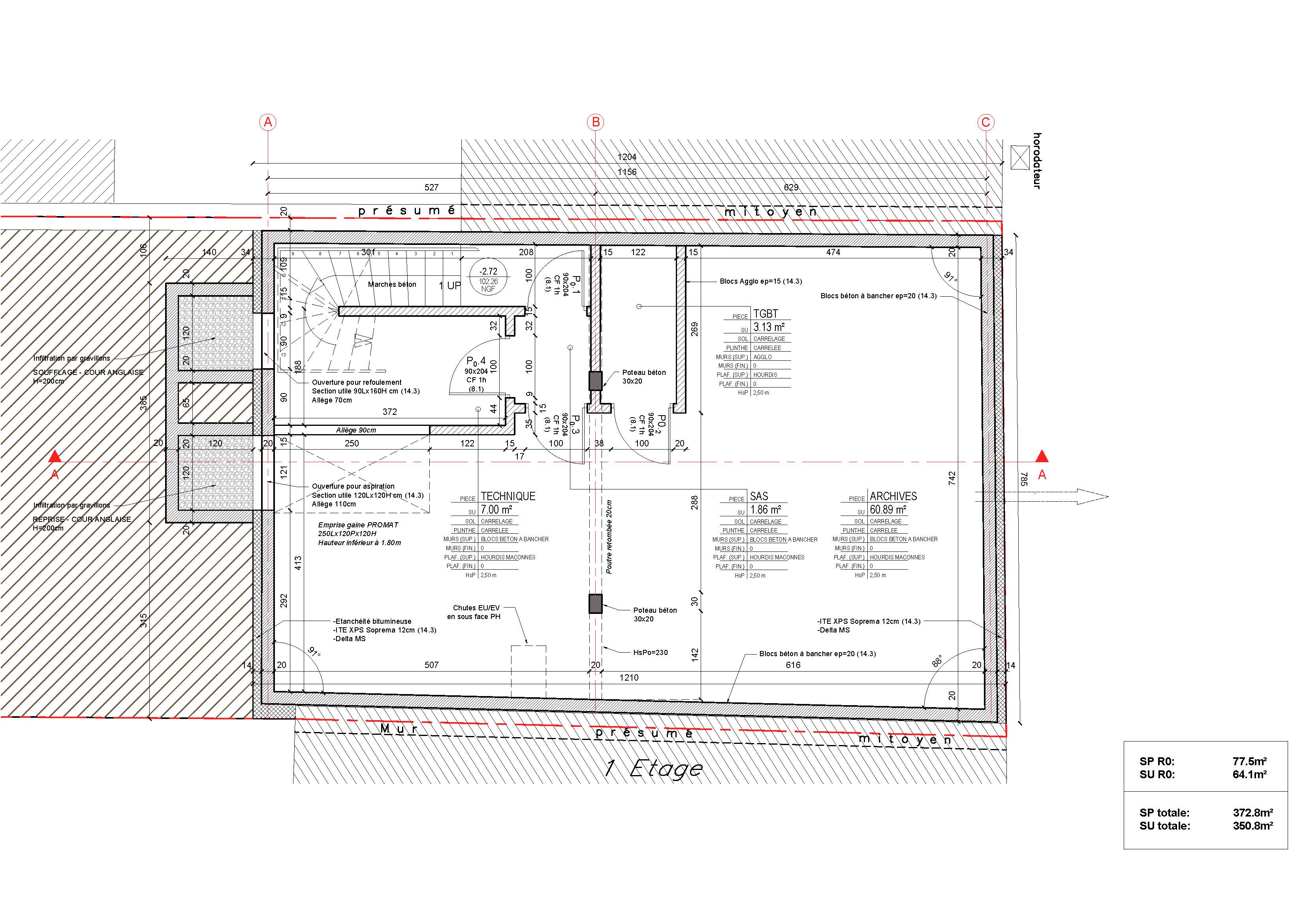
Ce projet concerne la construction d’un immeuble de bureaux de 370 m² à Villejuif, conçu pour répondre aux besoins spécifiques de la société Altice. L’espace intérieur a été pensé pour optimiser confort, fonctionnalité et fluidité de circulation. Il comprend plusieurs bureaux individuels, des salles de réunion, une zone de réception, ainsi que des locaux techniques et des circulations soigneusement organisées.
Le projet intègre également des espaces extérieurs agréables : une terrasse au rez-de-chaussée ouverte sur un jardin en pleine terre, offrant un cadre naturel et apaisant, ainsi qu’une terrasse au R+2 offrant une belle vue sur la rue principale et créant un espace convivial pour les pauses et rencontres informelles.
L’ensemble de l’immeuble allie fonctionnalité, modernité et qualité d’usage, créant un environnement de travail lumineux, agréable et parfaitement adapté aux activités de l’entreprise.

X