Arago - VILLEJUIF

habitation extension

Année : 2025
Surface : 227m² ( extension : 70m² )
Budget : 220 euros HT
Mission de conception
Maitrise d'ouvrage privée

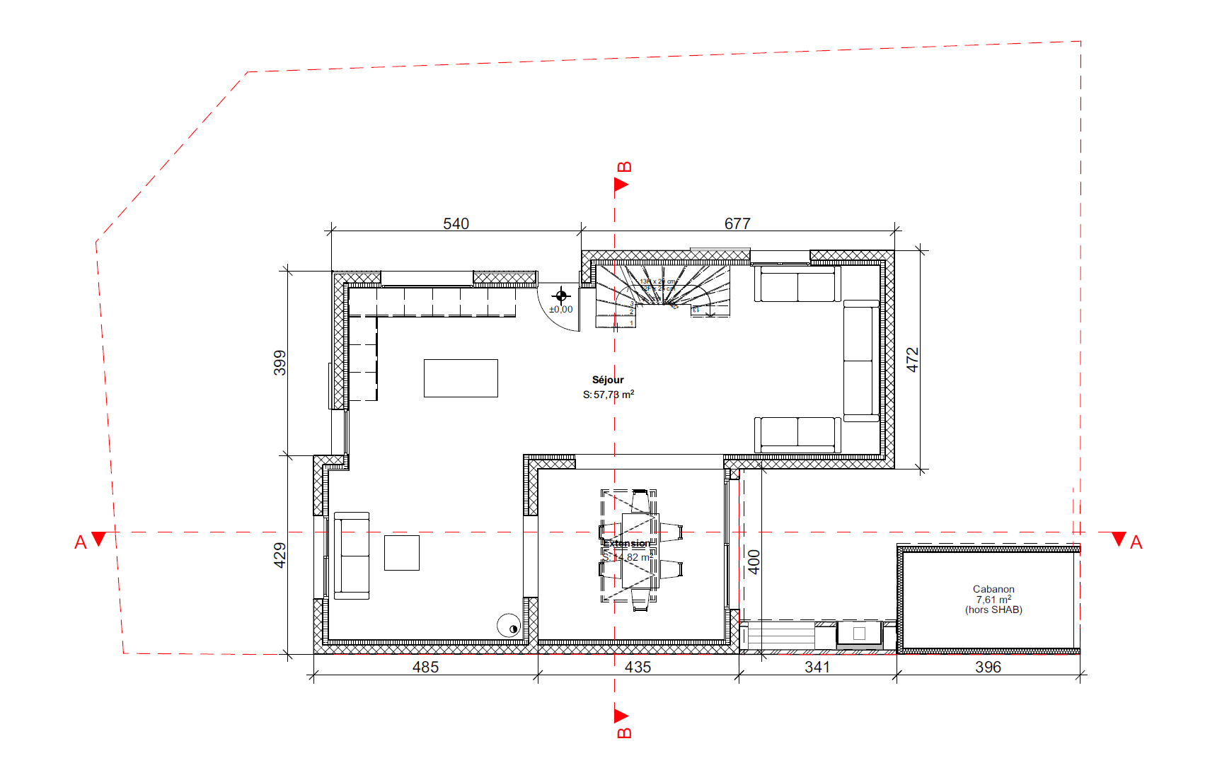
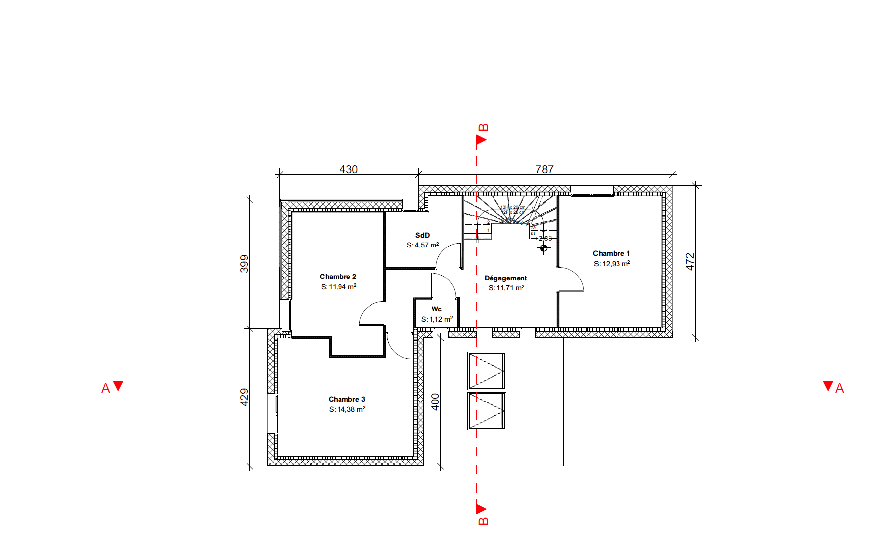
Cette extension de 70 m², répartie sur deux niveaux, a été réalisée sur une maison existante à Villejuif afin de repenser les volumes et optimiser les espaces de vie.
Le projet comprend la reprise des volumes principaux avec une extension de 15 m² au rez-de-chaussée et l’ajout d’un niveau en R+2. Un cabanon de jardin et des espaces de stockage extérieurs ont également été intégrés pour répondre aux besoins pratiques des occupants.
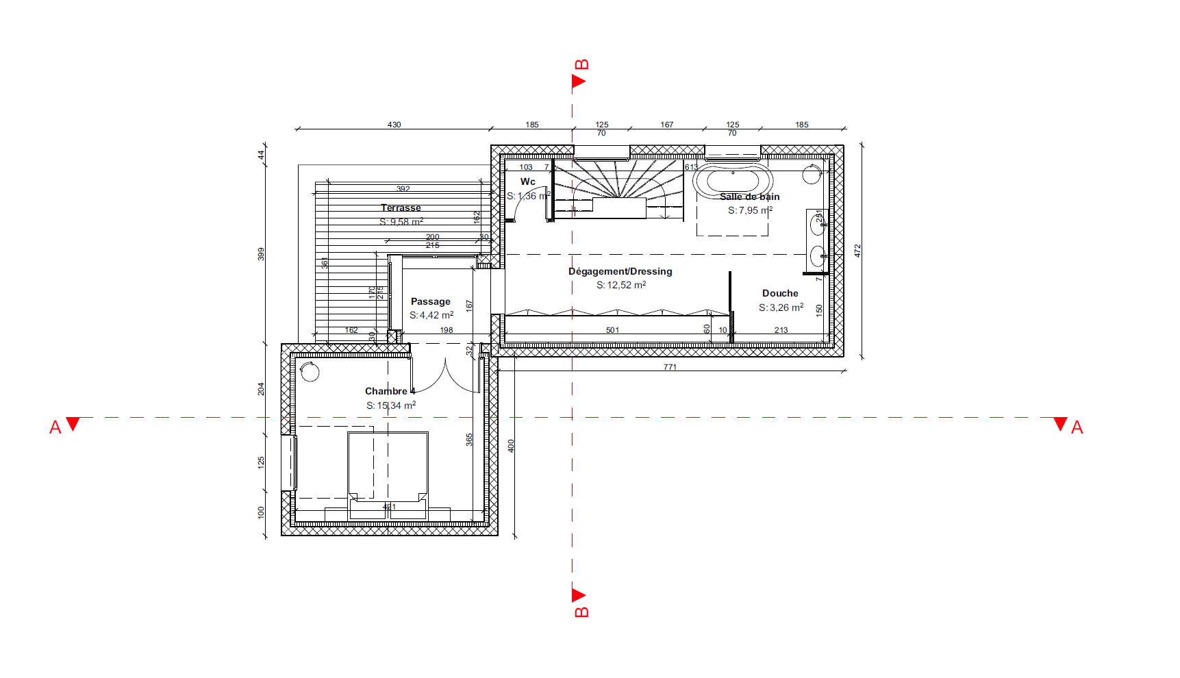
Au R+2, une suite parentale ouverte de 45 m² a été créée, comprenant un grand dressing sur mesure et un passage vitré menant à une terrasse de 10 m², offrant lumière et vues agréables. Les façades de l’extension sont traitées en bardage bois gris anthracite, tandis que le niveau R+2 est habillé entièrement de zinc blanc, créant un contraste élégant et contemporain.
Résultat : une extension moderne et fonctionnelle, où matériaux, volumes et lumière naturelle participent à l’harmonie globale de la maison.

X